

McGibbon on Main

The Mill Landing Condos

The Design District Condos

9750 Yonge Street

Dockside Condos

Galleria on The Park - Block 5

Condo

Condo

Condo

Condo

Condo

Condo

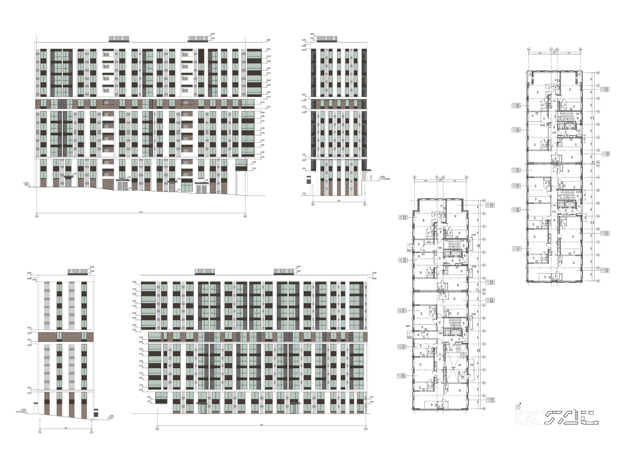
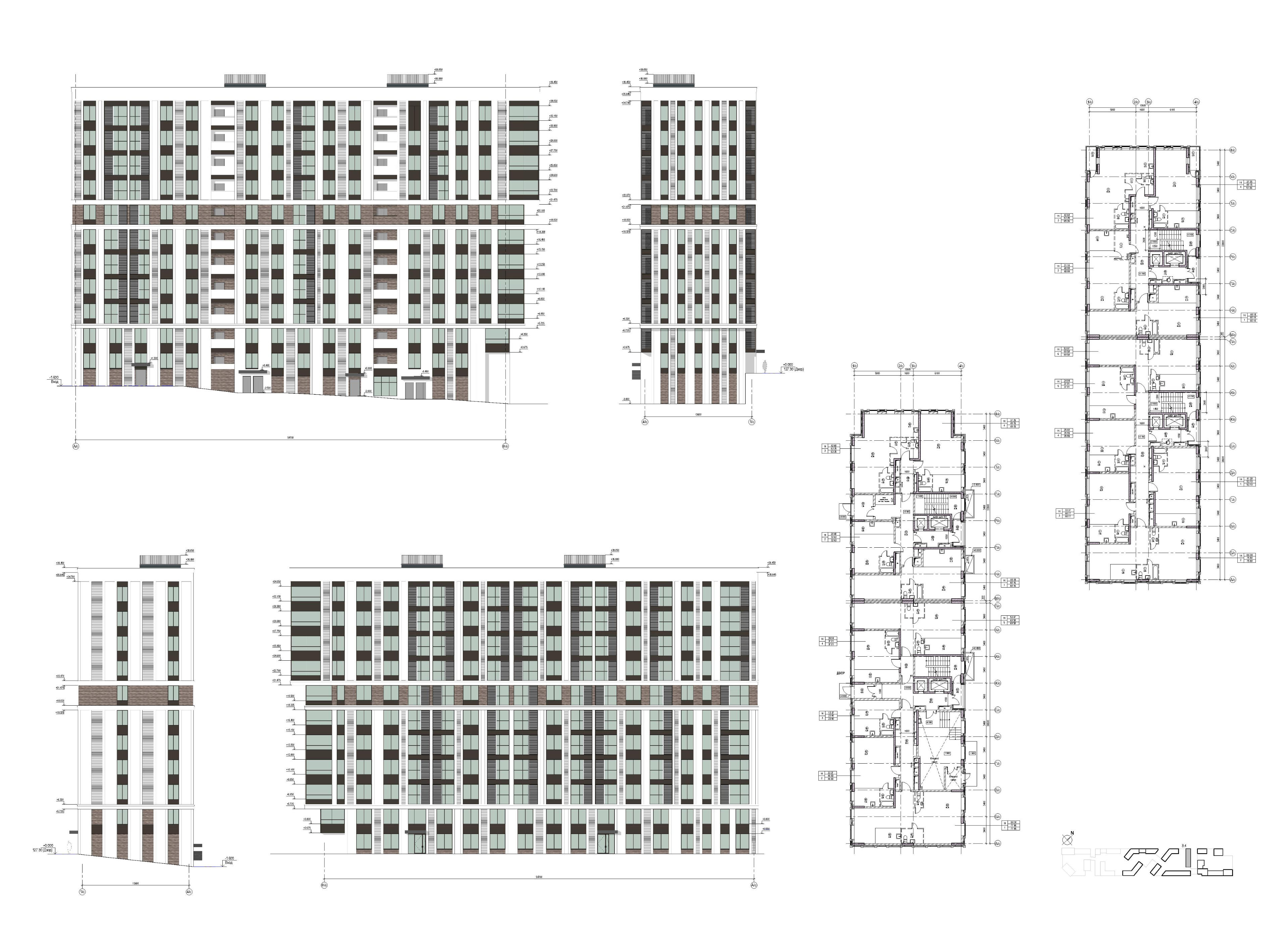
Residential + Retail

Residential + Retail

Residential + Retail

Residential + Retail

Residential + Retail

Residential + Retail

Residential + Retail

Residential + Retail

Residential + Retail

Residential + Retail

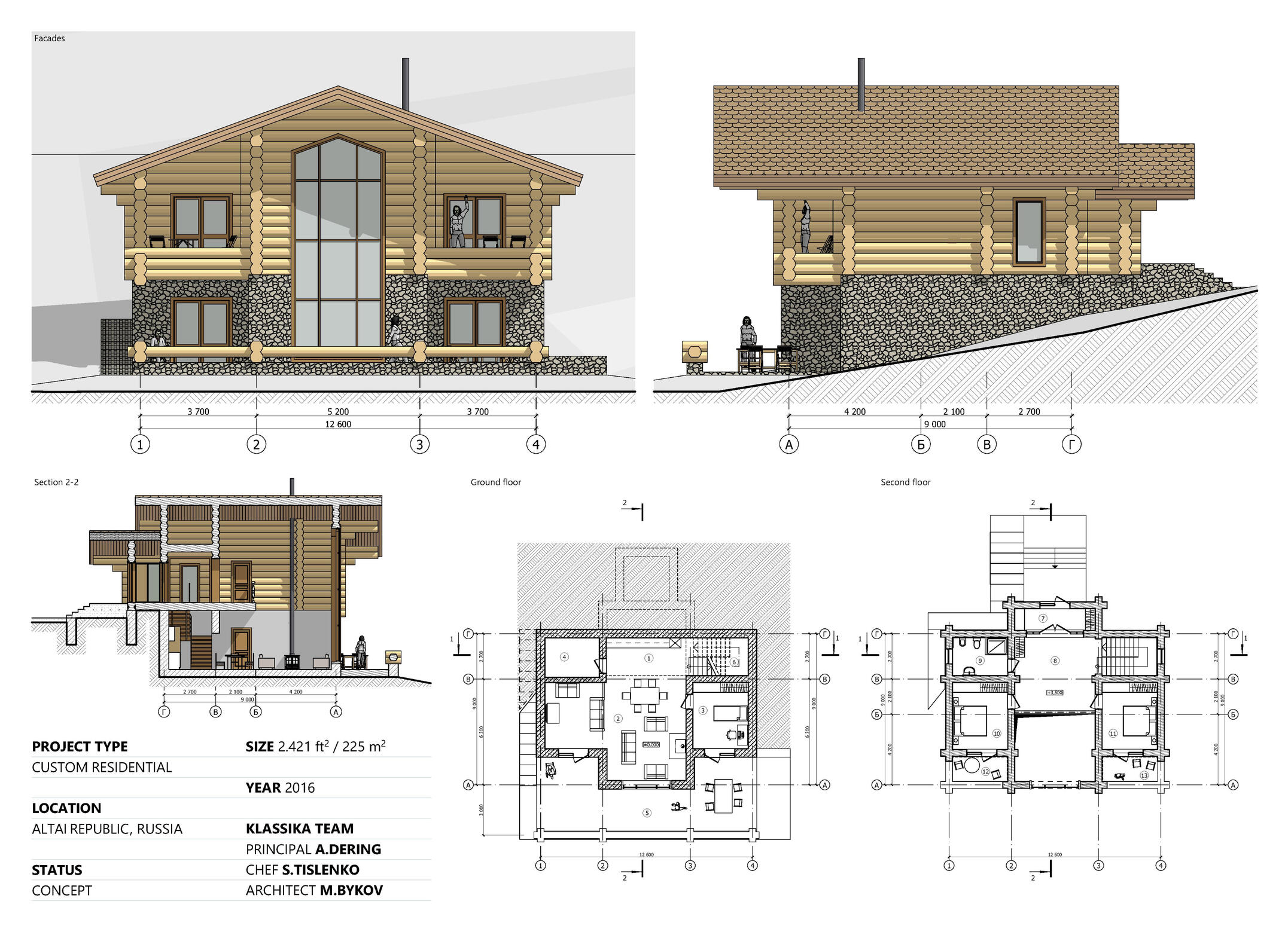
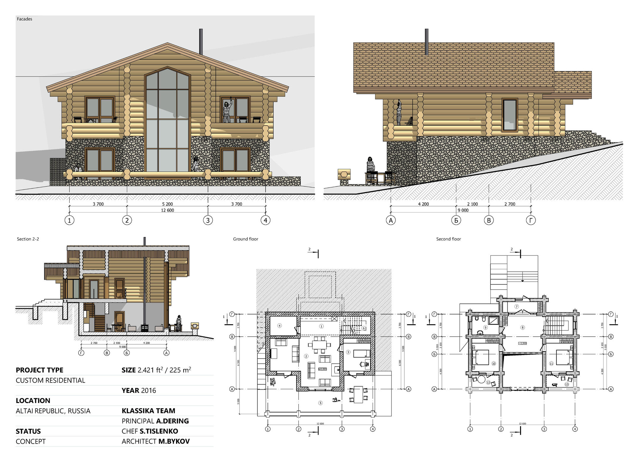
Detached Single-Family House

Detached Single-Family House

Detached Single-Family House

Detached Single-Family House

Hospitality

Hospitality

Hospitality

Hospitality

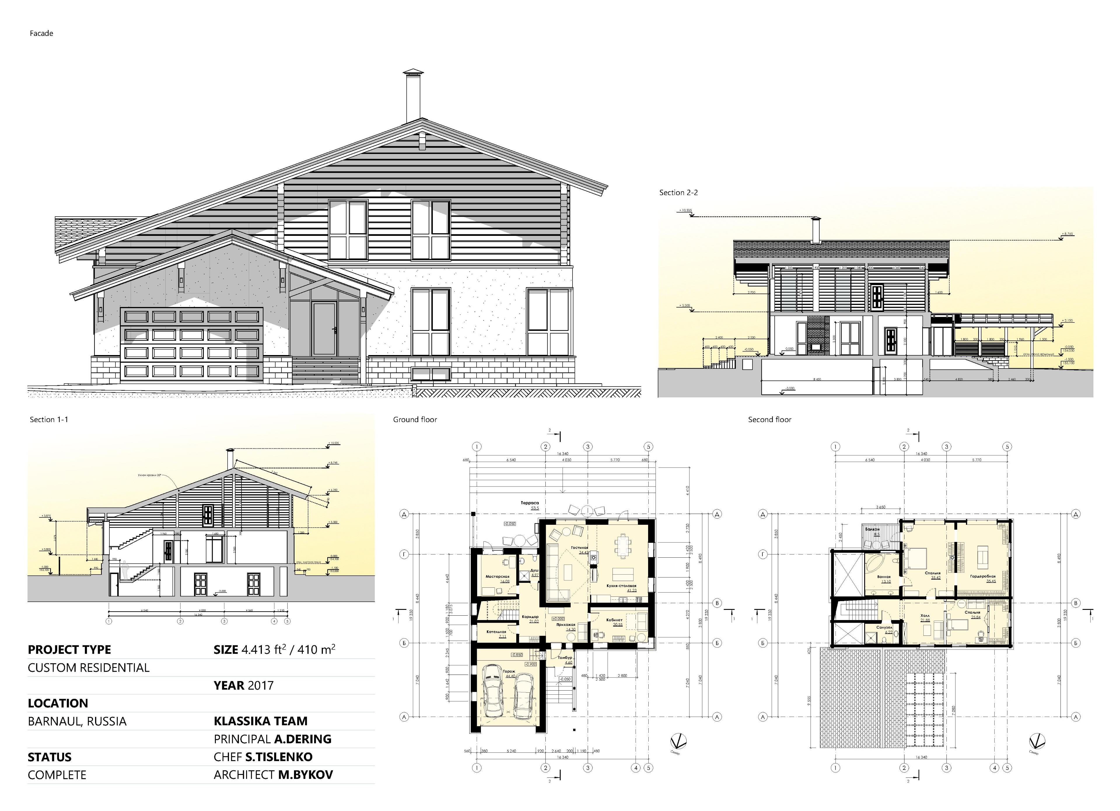
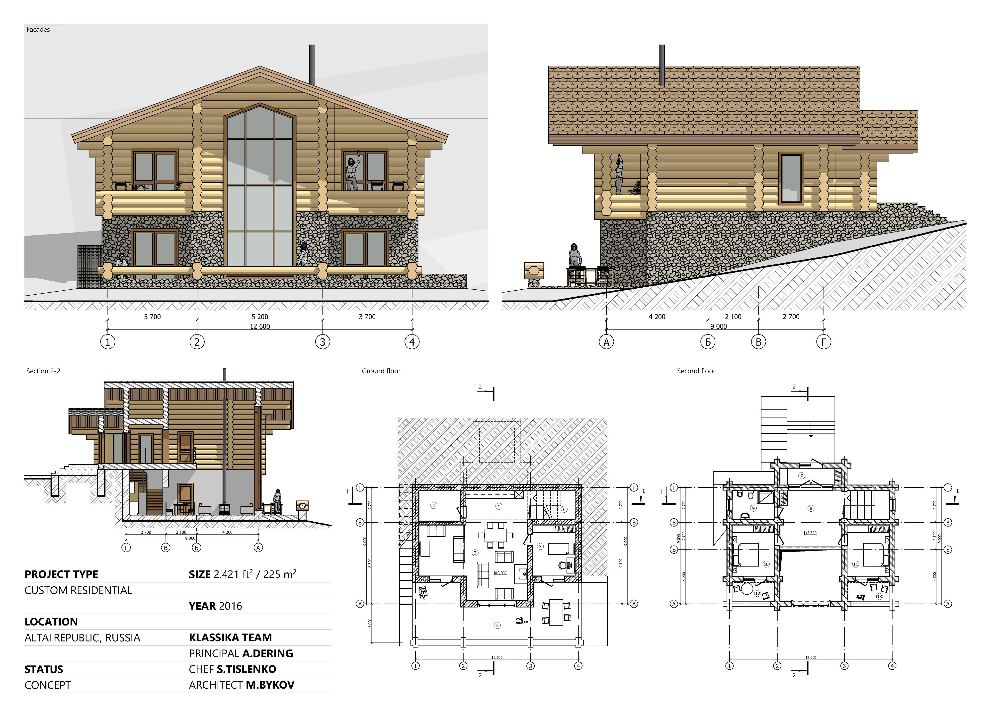
Detached Single-Family House

Detached Single-Family House

Rental

Rental

Condo + Retail

Condo + Retail

Detached Single-Family House

Detached Single-Family House

Art Museum

Mixed-Use

Art Museum

Art Museum

Residential + Office

Residential + Office

Visitor Centre

Visitor Centre

Landscape Design

Landscape Design

Renovation

Renovation
Max Bykov is an architectural professional based in Toronto with over ten years of experience in residential, mixed‑use, and heritage projects. His work sits at the intersection of design and construction, focusing on BIM coordination, construction documentation, and contract administration. Max supports projects from design development through construction, helping drawings, submittals, and RFIs move smoothly between teams.
He has contributed to a range of high‑rise and mixed‑use developments, working closely with architects, consultants, and contractors. With experience in both ArchiCAD and Revit, he enjoys the technical side of documentation and coordinating information across disciplines.
Max is currently deepening his contract administration expertise through the CCA certification process, with a focus on SD reviews, submittals, RFIs, and field reporting in the Toronto market.
© 2026 MB